Производство и поставка мостовых и козловых кранов

+380(5235)90903, (095)813-44-26image 

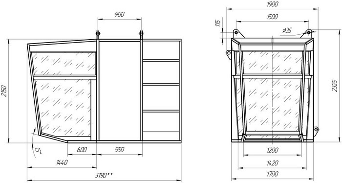
     Кабина  крана закрытого типа.

   Данная кабина предназначена для установки и управления козловыми кранами. Кабина отвечает всем современным требованиям эргономики и безопасной эксплуатации.

  Кабина обладает повышенной обзорностью, имеет хорошею теплозвукоизоляцию.

  Внутренняя облицовка выполнена в светлых тонах из качественного алюминиевого композитного материала,  который обладает высокой степенью эксплуатационной надежности.

   Остекление кабины выполнено из многослойного ударопрочного стекла изготовленного по технологи «триплекс».  Стекла устанавливаются в специальный П-образный профиль и фиксируются прижимной рамкой, что способствует легкодоступной замене стекол изнутри, без применения какого либо специального инструмента, что прибавляет преимуществ данной кабине. Кабина оснащена тремя открывающимися наружу фрамугами.

  Металлоконструкция кабины выполнена из трубных профилей квадратного сечения.

  Стандартное климатическое исполнение кабины У1  по ГОСТ 15150, по дополнительному согласованию с заказчиком возможно изготовление  в климатическом исполнении Т и УХЛ.

 Базовая комплектация кабины включает :

  - металлический шкафчик аптечки

  - кронштейн огнетушителя

  - карман для документов

  - вешалку для одежды

  - светильник внутреннего освещения

По дополнительному  согласованию с заказчиком в кабине может быть предусмотрено:

   - стеклоочиститель  с омывателем стекол

   - кондиционер(тип , марка и место установки согласовывается во время заказа)

   - обогрев кабины может быть выполнен не только  на основе промышленных печек  ПЭТ-2 а также с

       помощью  тепловентилятора или тепловой  завесы.

    - система очистки воздуха

    - антивибрационное кресло  оператора

    - тумбы командоконтроллеров или тумбы джойстиков

    - кресло-пульт неповоротный или поворотный

    - солнце защитные козырьки, солнцезащитные рулонные шторы

    - огнетушитель

    - антикоррозийная защита  промышленными красками компании « Lankwitzer»

    - Кресло помощника оператора

 

    - электромонтаж с установкой всех необходимых элементов управления  кранов(командоконтроллеры, джойстики, шкаф управления и т.д.)