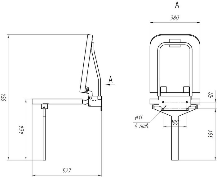
Кресло оператора антивибрационое.
Кресло оператора элемент рабочего места, предназначено для поддержания рабочей позы человека в положении «сидя», с частотой собственных колебаний сидения не превышающие 1,5Гц, что соответствует ГОСТ20062-96.
Обязательными элементами кресла являются сиденье, спинка и подлокотники. Дополнительными элементами могут быть подголовники, средства перемещения сиденья в горизонтальной плоскости, а также вокруг своей оси, подставки для ног, используемые при выполнении всех видов работ, связанных с длительным сохранением положения сидя.
Кресло оператора предназначено для использования в течение длительного времени, независимо от их профессионального назначения предъявляются следующие требования: обеспечение поддержания правильной и удобной рабочей позы; создание условий для изменения рабочей позы, обеспечение нормальной деятельности сердечнососудистой, дыхательной и пищеварительной систем. Конструкция кресла оператора не должна вызывать болезненных ощущений, возникающих в результате давления элементов сиденья
на тело человека, учет антропометрических характеристик при выборе формы и глубины сиденья.
Кресло оператора должно также обеспечивать удобную рабочую позу, надежную опору для тела с учетом выполняемых оператором действий, а при необходимости и удобную позу при отдыхе. Для свободного вставания предусматривается возможность перемещения сиденья вместе с подлокотниками и спинкой по отношению к его основанию вперед — назад на 180 —200 мм и поворот вокруг оси не менее 90 град. от исходного положения. Кресло оператора должно способствовать ослаблению, вибрационных и ударных воздействий, если они специфичны для данного вида деятельности.
 
 
 
  
 
 
  
 
 
  
 
 
  
 
 
  
 
 
  
 
 
  
 
 
  
 
 
  
 
 
  
 
 
  
 
 
  
 
 
 